Ippokratous 36
Location: Elliniko–Argyroupoli, Athens
Status: Under Development
Type: High-End Residential (Triple Complex)
ABOUT
Ippokratous 36 is PM Value’s flagship project — an elegant and innovative residential development in one of Athens' most up-and-coming neighborhoods. The property features three independent residences, each designed with a focus on privacy, functionality, and modern lifestyle:
Ground floor residence with basement connection and private pool
First-floor residence with spacious layout and natural lighting
Maisonette (2nd floor + attic) with private pool and rooftop access
FEATURES
4 Underground parking spaces
Private pools for two of the residences
Underfloor heating & ceiling cooling systems
High-efficiency heat pumps
Modern, minimalist interior design with customization options
Excellent space utilization on all levels
Strategically located in a fast-developing area of Athens, Ippokratous 36 reflects PM Value’s core philosophy:
Future-ready homes that balance sustainability, luxury, and long-term value.
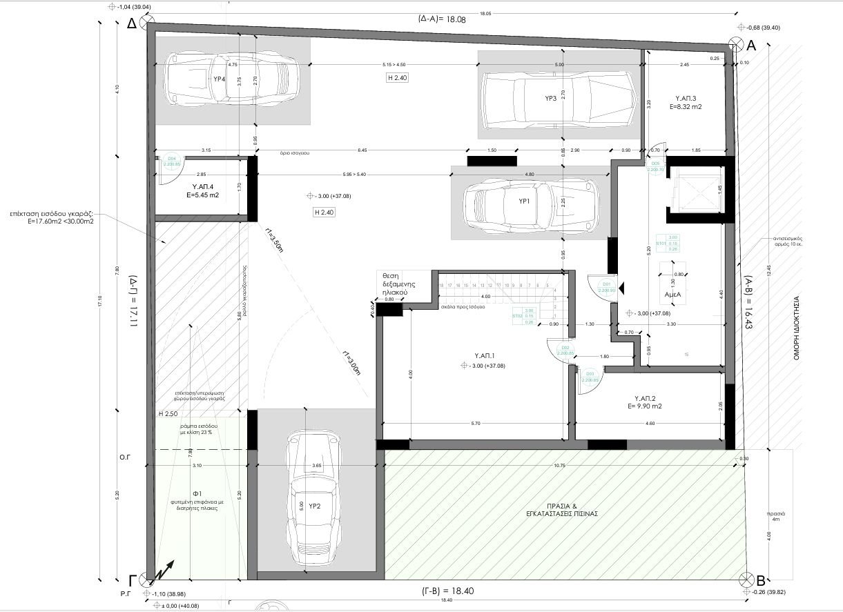
BASEMENT/GARAGE
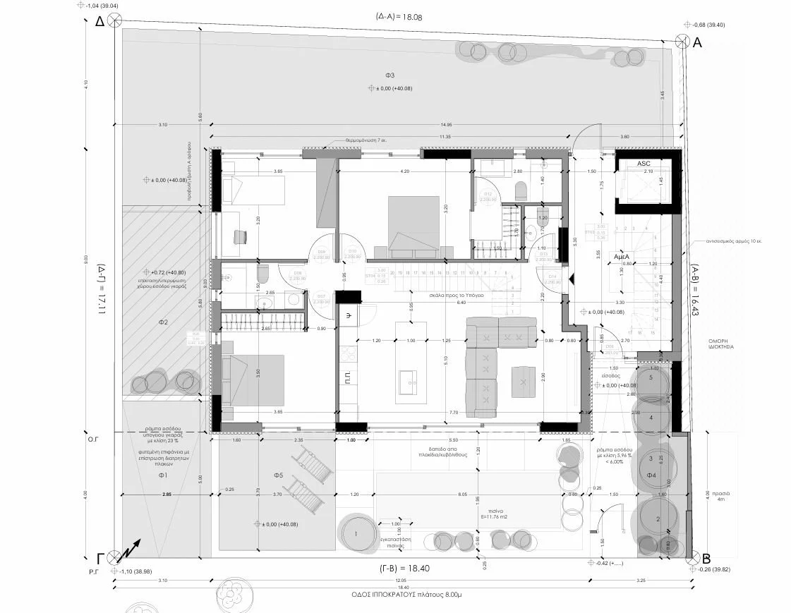
GROUND FLOOR
FIRST FLOOR
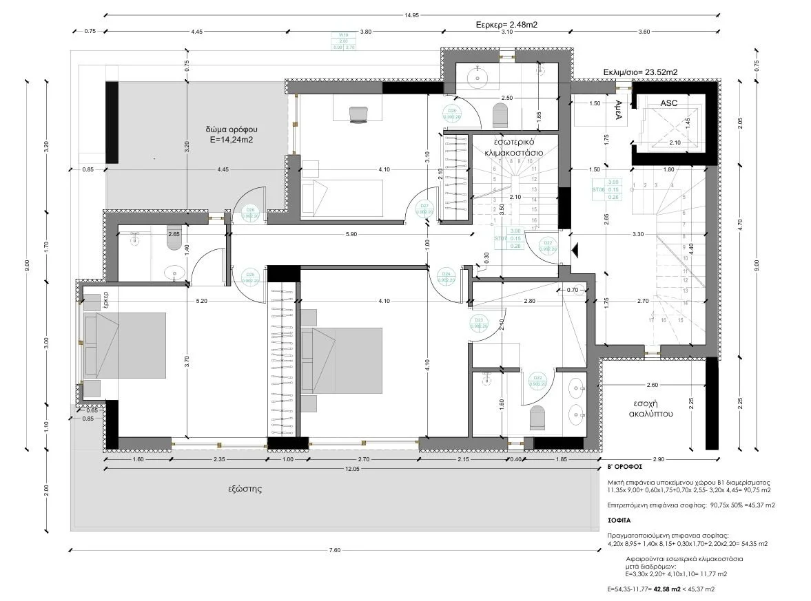
SECOND FLOOR
LOFT
Interested in one of the properties? We’d love to hear from you, fill out the contact form.

